VIVANT Restaurant
Interior design - FF&E design - Procurement
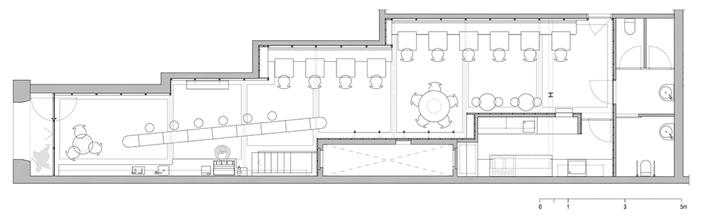
Brief: Refurbishment from the scratch for a restaurant to be.
Where: Eixample, Barcelona.
When: Winter 2014





















Team VIVANT Restaurant
Interior design: Marcos Catalán + Anna Badia
Photographer: Eugeni pons
FF&E: Vintage room antics,Artek,Luis Poulsen,Santa&Cole, Marset,Tunds,own designs
Interior design: Marcos Catalán + Anna Badia
Photographer: Eugeni pons
FF&E: Vintage room antics,Artek,Luis Poulsen,Santa&Cole, Marset,Tunds,own designs
CARGO COLLECTIVE, INC. LOS ANGELES, CALIF. 90039—3414